Villa in Chiang Mai, Thailand 3 bedrooms № 122825
81

ID122825
฿ 16 900 000
- THB ฿
- USD $
- EUR €
- RUB ₽
- GBP £
Property description
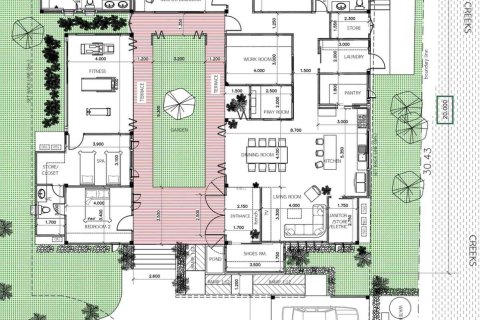
Pre-Sales starting for these courtyard style exclusive villas not far away from town.Overview of the Courtyard Style Exclusive Villa house plan:1 of 4 house plans in the project of mostly pool villas, this is an alternative layout built around a courtyard rather than a pool. Set in a peaceful corner of the project the villa enjoys views across rice fields to the mountains beyond. Every detail has been carefully attended to and only the finest materials used. The high ceilings, slightly tinted glass and full open access to the outside all contribute to an efficient airflow.
- Living Area: 280 sqm (house plan is customizable)
- Land Size: 800 sqm / 200 Sq.wah (option to buy a larger plot)
- 3 Bedrooms
- 3 Bathrooms
- High ceilings (3-6m)
- Fully Furnished
- Gym/ Fitness Room
- Spa/Massage Room
- Laundry
- Pantry
- Office
- PlayroomConstruction Material Highlights:
- Teakwood doors (with Hafele accessories)
- Air Conditioning (Daikin VRV)
- Custom Kitchen (Franke)
- Bathroom (Moya & Cotto - non slip)
- Premium Aluminum Windows and sliding doors (Empower Company)
- Windows - double glazed windows and slightly tinted for extra UV protection
- Shingle roof (SCG -20 year warranty)
- Double thick walls for insulation
- Rain gutters
- Non-slip, shock absorption soft floors (Rococo)
- Water heater (Stiebel)
- Nippon paint AirCare (good for health and environment)
- Lighting systems by lighting specialist
- Wheelchair friendly
- Smart home system
- CCTV - inside and outside the house with access via a mobile app
- High speed internetProject Highlights:
This is a community of luxury detached houses. There are 4 main house plans but each house is unique and owners are encouraged to work with our architects and builders to participate in the design. We understand that people have different requirements so we have a flexible approach, allowing you to develop your own personal living spaces. Houses come with or without private pools. The focus is to have a seamless interaction with the outside spaces, lots of natural light and open plan living spaces. All the houses sit in a generous plot and, with our gardening service on-site, you can easily maintain lovely outdoor areas to enjoy. We take great care to ensure lovely views of the park area or the surrounding rice fields. The site is spread over 9696 sq. m. with wide roads and pathways.
- Organic - All areas of the project use sustainable agriculture methods and organic compost to provide a healthy place to live.
- Nature - Rice fields and patches of woodland are a natural haven for birds and other attractive wildlife. There are also cooling waterways running through the project. Plenty of trees provide cooling shade as you wander through neatly tended gardens designed with local indigenous plants, shrubs and trees.
- Exercise - The roadways are bordered by wide, well lit pathways. They are designed to be suitable for walking, running and other forms of exercise. Furthermore there are pathways away from the road, running through the park. They are also wheelchair friendly.
- Community Spaces - Built around a substantial park area and gardens. There is also a communal sala built raised up over a traditional rice field. The sala is equipped with toilets & sinks, seating, solar powered lighting. It has lovely views across more rice fields to the hills beyond. A great place to watch the sun go down or used for various classes. In a corner of the park you will find a communal barbecue pit. Have a picnic with friends or family. There are also plans to have a good sized kitchen and small cafe serving delicious meals, drinks and snacks.
- Security - There is only one way in and out of the project. The entrance is covered by a security camera. Also the waterways running around the project form a natural boundary making access extremely difficult.
- Concierge Services - permanent staff of gardeners, cleaners / maids, maintenance and repair technicians, and even an on-site driver with car. Our on-demand concierge service is a unique feature. Need meals or even a Thai massage? Just give us a call and we can help.
- Location - Only a short walk away from the nearest village. This busy little village has a 24/7 mini-market, ATM machine as well as a doctor’s clinic. There is a market and some food stalls. Not far away are the beautiful hills in Doi Saket.
Get in touch today to make your dream home plans a reality and become part of the community!
Features
- Air Conditioners
- Hot tub
Outdoor features
- Security
- Pets allowed
Contact the seller
CityChiang Mai
TypeVilla
Bedrooms3
Living space280 m²
- m²
- sq. ft
Land area800 m²
- m²
- sq. ft
Completion dateI quarter, 2024
Price
- Price
- per m²
฿ 16 900 000
- THB ฿
- USD $
- EUR €
- RUB ₽
- GBP £
Similar offers
-
Bedrooms: 3Bathrooms: 3Living space: 280 m²
-
Rooms: StudioBathrooms: 3Living space: 280 m²Newly renovate Three bedroom villa for sale in prime location in Rawai Details
-
Bedrooms: 3Bathrooms: 2Living space: 280 m²
-
Rooms: 4Bedrooms: 3Bathrooms: 3Living space: 280 m²D27 Luxury villas with pools and gardens near Phuket airport Details

























